お持ちの不動産査定してみませんか?無料査定はこちら
無料査定はこちら

大阪市北区茶屋町 貸テナント

利便性の高いビルでのご開業はいかがでしょうか⁉

梅田・大阪駅からすぐで好立地のテナントビルです。
中層階で美容系クリニックには最適です!

物件概要

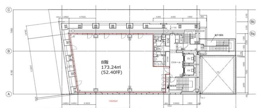
物件No JPR茶屋町ビル 8階
所在地 大阪市北区茶屋町2-19
アクセス(最寄り駅) 阪急線『梅田駅』徒歩2分                     JR線『大阪駅』徒歩5分                     
募集科目 美容クリニック
面積 52.40坪
賃料 相談
備考 竣工:1994年6月築 構造:鉄骨造地上9階地下1階 設備:エレベータ2基

物件の詳細

間取り

アクセスMAP